
1 Beschreibung des Gerätes
In diesem Beitrag geht es um die Prüfung und Instandsetzung eines Toplader Tapedecks der Firma Grundig. Es ist eines der Spitzenprodukte des Herstellers, der CN 1000 SuperHifi von ca. 1977.
Das Gerät hat ein aufwendiges Laufwerk mit einer Tipptastensteuerung und kräftigen Elektromagneten, die die mechanischen Vorgänge antreiben. Die Kapstan-Welle wird über eine große Schwungmasse mit einem Riemen vom Laufwerksmotor angetrieben, was für gute Gleichlaufwerte sorgt.
Weiterhin sind große übersichtliche Anzeigeinstrumente (VU-Meter) vorhanden, Schiebepegelregler für diverse Eingänge und eine diskret aufgebaute Dolby-B- Rauschunterdrückung.
Wie ich finde einen sehr interessanten Bericht zu diesem Gerät gibt es auch hier unter dem Thema "Der letzte seiner Art - Grundig CN-1000 http://new-hifi-classic.de/forum/index.php?topic=2104.0
2 Erste Tests
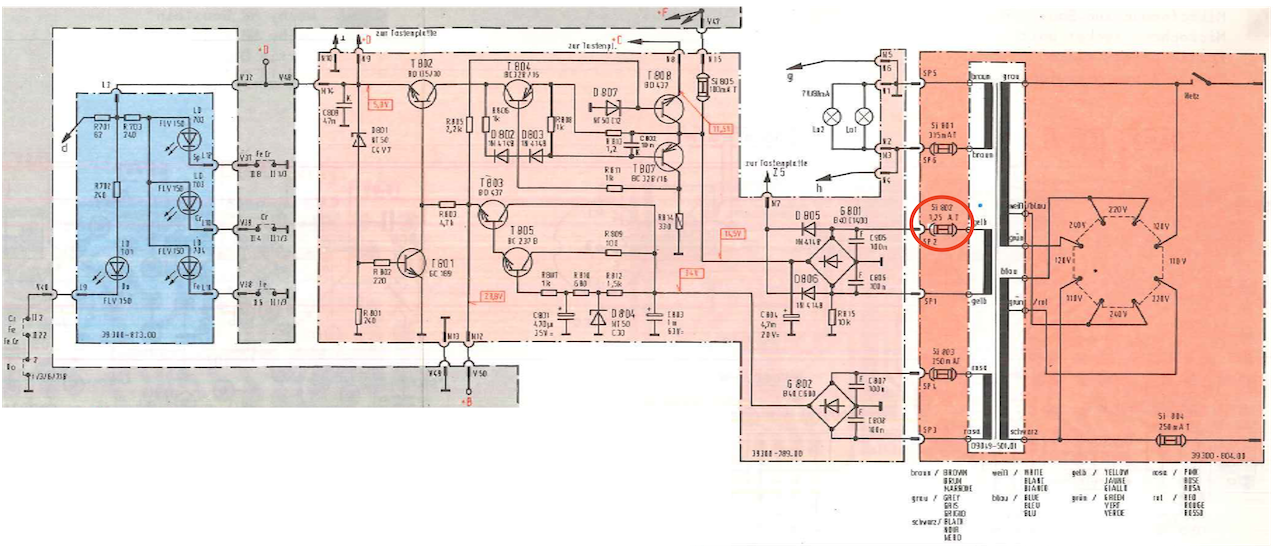
Ich habe das Gerät am Netz angeschlossen und eingeschaltet. Ein Messinstrument und der Laufwerksschacht sind beleuchtet. Ein Instrument bleibt dunkel, hier ist vermutlich das Birnchen defekt. An den Bedientasten und der Bandsortenanzeige leuchtet keine der LEDs und das Laufwerk reagiert auf keinerlei Bedienung der Tipptasten. Hier scheint schon mal eine Versorgungsspannung für die Steuerlogik zu fehlen, vermutlich +D mit 5,1 V.
Eine Messung ergibt, dass die Sicherung Si 802 1,25 Ampére Träge (rot markiert in Abbildung 1) defekt ist, die ich leider nicht da habe und bestellen muss. Dadurch fehlt auch wie vermutet die Stromversorgung +D (5,1 Volt) für die Bandsortenanzeige (LEDs) und die Logiksteuerung.
3 Fehlersuche
Bis die Sicherung eintrifft zerlege ich schon einmal das Gerät und überprüfe das Netzteil. Das Gerät zeigt sich sehr servicefreundlich, nachdem ich die Schrauben auf der Unterseite gelöst habe, den Deckel des Kasettenfachs nach vorne und denn Cueing-Hebel abgezogen habe, lässt sich die Gehäuseoberseite noch oben ziehen und nach hinten kippen. Der Verbindungsstecker M für die Anzeigen im Deckel muss noch abgezogen werden, dann lässt sich der Deckel komplett zur Seite legen.
Die Elektronik lässt sich nach oben klappen, wenn die Rastnase (rote markiert in Abbildung 2) dafür nach hinten gedrückt wird und man kommt recht gut an die Netzteilplatine im hinteren Bereich, links vom Netztrafo heran.
3.1 Reparatur des Netzteils
Die Platine für die Netzspannungsumschaltung muss etwas nach oben gezogen werden, bis die Steckverbindung zur Netzteilplatine getrennt ist. Die vorderen Stecker der Netzteilplatine markieren und abziehen, die Platine mit dem Kühlblech dann nach vorne herausziehen und entnehmen.
An der Netzteilplatine habe ich dann einige Messungen vorgenommen, bei denen mir aufgefallen ist, das hinter dem Gleichrichter G601 für C+ (11,5 V) und D+ (5,1 V) ein Kurzschluss besteht. Jetzt kann der Gleichrichter selbst, der Siebelko oder ein anderes Bauteil diesen Kurzschluss verursachen. Als erstes habe ich den Elko C804 mit 4700 μF/20 Volt im Verdacht und löte diesen zur genaueren Messung aus der Platine aus. Die nachfolgende
Messung zeigt dann auch einen vollständigen Kurzschluss dieses Elkos, was ich bisher auch noch nicht hatte. Eine Messung der weiteren Komponenten ergibt keine weiteren verdächtigen Bauteile. Die Transistoren scheinen ok zu sein. Ich beschließe die anderen Elkos ebenfalls auszutauschen auch wenn diese bisher ok aussehen.
Die ausgebauten Elkos habe ich dann noch mit einem kleinen chinesischen Bauteiltester überprüft
Das ergibt dann folgende Werte:
- C804, 4700 μF: Kurzschluss, defekt!
- C803, 1000 μF: 953 μF, ESR 3,1 Ω, Vloss 1,4%
- C801, 470 μF: 601 μF, ESR 0,53 Ω, Vloss 0,9%
Code: Alles auswählen
Elko Wert Spg Ø Höhe
(μF) (V) (mm) (mm)
C804 4700 20 25 40,1
C803 1000 63 21 42
C801 470 35 16,2 25
Die zwei großen alten Elkos haben vier Anschlussbeine, dreimal Masse am Ring und + in der Mitte. An den Elkos sind Kontaktringe angepunktet, die man sehr leicht mit einem Schraubendreher abhebeln kann. An diese nun losen Ringe löte ich dann den Massekontakt der neuen Elkos an, so dass der +-Pol durch die Mitte des Ringes geht, da die neuen Elkos einiges kleiner sind als die Originalen. Verwendet habe ich Panasonic FC mit 105°C,
die jetzt wieder viele Jahre halten werden.
Das Netzteil mit den neuen Elkos ist dann in Abbildung 7 zu sehen. Es kann dann in umgekehrter Reihenfolge wieder eingebaut werden.
Das wäre es dann erstmal gewesen, das Netzteil funktioniert wieder, die Sicherung fliegt nicht mehr raus. Demnächst soll es dann mit der Revision weiter gehen. Vermutlich tausch weiterer Kondensatoren im NF-Teil, ein paar Messungen und Abgleich des Gerätes.
Ich hoffe meine Ausführungen waren einigermaßen verständlich, Kommentare sind gerne willkommen.
Wer Rechtschreibfehler findet, darf sie behalten und sich zu Hause an die Wand hängen...

Viele Grüße
Wolfgang
download/file.php?mode=view&id=433
download/file.php?mode=view&id=434
download/file.php?mode=view&id=436
download/file.php?mode=view&id=437
download/file.php?mode=view&id=439&sid= ... 06745112c5
download/file.php?mode=view&id=438&sid= ... 06745112c5
download/file.php?mode=view&id=440
download/file.php?mode=view&id=442
download/file.php?mode=view&id=443
download/file.php?mode=view&id=441